Дом шалаш A-Frame Classic 8 x 10

Характеристики

Размер

8x10

Общая площадь по полу

96 м2

Полезная площадь 1-го этажа

72.5 м2

Площадь лофта

25,4 м2

Высота потолка 1-го этажа

2,5-6,2 м

Высота лофта

3.5 м

Патио (терраса)

24 м2

Крыльцо

8 м2

Срок строительства

20-25 дней

Цена

3,080,000 рублей

Планировки

Планировка обсуждаема

Спецификации

Комплектация Стандарт
Фундамент
Винтовые сваи 89 мм, 2,5 метра длина, обвязка спаренный брус 145х45 обработан трудновымываемым антисептиком
Каркас
Брус 145*45 обработан трудновымываемым антисептиком
Утепление
Минеральная вата 150 мм, перехлестная укладка
Мембраны
Пароизоляция внутри Изоспан
Ветрозащита Изоспан
C проклейкой стыков скотчем
Кровля
Профлист (цвет на выбор)
Доска под обрешетку 100 на 25
Рейка для вентилируемого зазора 25х50х3000
Внешняя отделка
Имитация бруса 16 мм
Внутренняя отделка
Стены — Евровагонка 12 мм
Полы — Коммуникационная обвязка 145х45, Утепление 150 мм, покрытие шпунтованные плиты Quck Deck, далее можете укладывать любое финишное покрытие
Окна / двери / лестница
  • Двухкамерные, профиль толщина 60 мм.
  • Дверь входная Двухкамерные, 60 мм.
  • Лестница из пиломатериала строганного
    Вентиляция
    С внутренней стороны и внешней предусмотрен вентилируемые зазоры

    Электрика, водоснабжение и канализация, отопление обсуждается отдельно

    A-Frame Classic 8×10 — Энергоэффективный Дом-Шалаш с Панорамными Окнами и Террасой "Под Ключ" в Нижнем Новгороде

    Ищете современный каркасный дом под ключ в Нижнем Новгороде? A-Frame Classic 8×10 — это готовое решение для тех, кто ценит скорость строительства, энергоэффективность и необычный дизайн. Наш дом-шалаш с панорамными окнами площадью 80 м² + мансарда 25,4 м² возводится всего за 14 дней и сочетает в себе экологичные материалы, продуманную планировку и стильный внешний вид. Идеальный вариант для круглогодичного проживания, дачи или гостевого дома.

    Основной текст с ключевыми запросами:

    1. Общие характеристики:

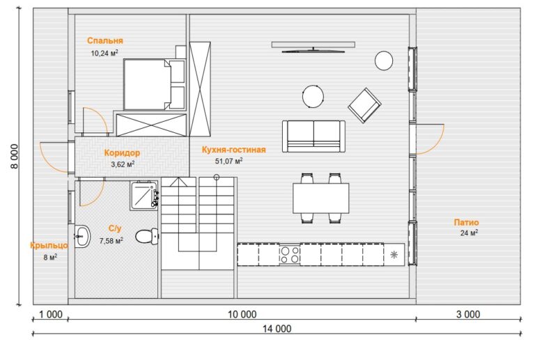
    • Размеры: 8×10 метров (площадь дома по полу) + крыльцо 8 м² + патио 24 м²

    • Общая площадь: 113,4 м² (80 м² первый этаж + 25,4 м² мансарда + крыльцо 8 м²)

    • Срок строительства: 14-21 день (домокомплект под ключ)

    • Фундамент: винтовые сваи (готовность за 1 день)

    • Материалы: брус 50×150 мм, тройное утепление (базальтовый плитный утеплитель, перехлестное утепление, общая толщина утепления 150 мм)

    • Окна: энергосберегающие стеклопакеты (панорамное остекление 180°)

    2. Планировка:
    Первый этаж (80 м²), полезная площадь 75,2 м²:

    • Просторная гостиная-кухня 51,07 м² с зоной для семейного отдыха

    • Уютная спальня 10,24 м² с большим окном

    • Удобный коридор 3,62 м² со встроенными шкафами

    • Крыльцо 8 м²

    • Патио 24 м²

    Мансардный этаж (25,4 м²):

    • Две изолированные спальни (11,84 м² и 9,11 м²)

    • Просторный холл 4,46 м² с естественным освещением

    Дополнительные площади:

    • Патио 24 м² (8×3 м) — идеально для летней зоны отдыха

    • Крыльцо 8 м² (8×1 м)

    3. Преимущества (с ключевыми словами):
    Энергоэффективный дом — тройное утепление снижает затраты на отопление на 40%
    Быстровозводимые дома — от фундамента до крыши за 2 недели
    Готовые решения — 3 варианта комплектации «под ключ»
    Экологичные материалы — натуральная древесина и безопасные утеплители
    Уникальный дизайн — треугольная конструкция с панорамными окнами
    Мобильность — при необходимости дом можно разобрать и перевезти

    4. Варианты комплектации (с ценами, если нужно):

    1. Базовый («Тёплый контур»)

      • Фундамент на винтовых сваях

      • Основной каркас с утеплением

      • Кровля и фасадная отделка

      • Остекление и входная дверь

      • Перегородки без обшивки
    1. Стандарт (под ключ)

      • Все что входит в теплый контур

      • Внутренняя отделка (евровагонка)
      • Лестница на мансарду

    Коммуникации (разводка электрики и труб водоснабжения и канализации отдельно)

    5. Как мы работаем (поэтапно):

    1. Бесплатный выезд замерщика на участок (Нижний Новгород и область)

    2. Обсуждение деталей

    3. Заключение договора с фиксированной ценой

    4. Поэтапная оплата

    5. Строительство с ежедневным фотоотчетом

    6. Сдача объекта и гарантия

    6. Почему выбирают нас:

    • Собственное производство в Нижнем Новгороде

    • Опыт строительства A-Frame

    • Используем только сертифицированные материалы

    • Даем реальные сроки и соблюдаем их

    • Оплату берем по факту, сначала в момент привоза материала, остаток по факту по стройки дома

    Хотите такой же современный и теплый дом? Оставьте заявку прямо сейчас и получите:

    • Оставьте заявку на получение каталога в мессенджер с актуальными ценами

    • Выберите размеры и комплектацию

    • Обсудите детали и начинаем работать

    Контакты:
    📞 +7 (831) 238-98-67 (Нижний Новгород)

    P.S. Успейте забронировать строительство в этом сезоне! Количество свободных бригад ограничено.

    Что говорят про наши построенные Глэмпинги A-frame

    Получают высшие оценки на платформах бронирования, имеют годовую заполняемость 70% и окупаются за два года.

    Получить каталог с ценами в мессенджер

    Получить каталог с ценами в мессенджер