Дом шалаш A-Frame Classic 8 x 8

Характеристики

Размер

8x8

Общая площадь по полу

88 м2

Полезная площадь 1-го этажа

57.2 м2

Площадь лофта

13,9 м2

Высота потолка 1-го этажа

2,5-4,2 м

Высота лофта

3.5 м

Патио (терраса)

24 м2

Крыльцо

8 м2

Срок строительства

20-25 дней

Цена

2,688,000 рублей

Планировки

Планировка обсуждаема

Спецификации

Комплектация Стандарт
Фундамент
Винтовые сваи 89 мм, 2,5 метра длина, обвязка спаренный брус 145х45 обработан трудновымываемым антисептиком
Каркас
Брус 145*45 обработан трудновымываемым антисептиком
Утепление
Минеральная вата 150 мм, перехлестная укладка
Мембраны
Пароизоляция внутри Изоспан
Ветрозащита Изоспан
C проклейкой стыков скотчем
Кровля
Профлист (цвет на выбор)
Доска под обрешетку 100 на 25
Рейка для вентилируемого зазора 25х50х3000
Внешняя отделка
Имитация бруса 16 мм
Внутренняя отделка
Стены — Евровагонка 12 мм
Полы — Коммуникационная обвязка 145х45, Утепление 150 мм, покрытие шпунтованные плиты Quck Deck, далее можете укладывать любое финишное покрытие
Окна / двери / лестница
  • Двухкамерные, профиль толщина 60 мм.
  • Дверь входная Двухкамерные, 60 мм.
  • Лестница из пиломатериала строганного
    Вентиляция
    С внутренней стороны и внешней предусмотрен вентилируемые зазоры

    Электрика, водоснабжение и канализация, отопление обсуждается отдельно

    A-Frame Classic 8×8 — Энергоэффективный Дом-Шалаш с Панорамными Окнами и Террасой «Под Ключ»

    Ищете современный, стильный и практичный дом для круглогодичного проживания или загородного отдыха? A-Frame Classic 8×8 — это идеальное сочетание оригинального дизайна, энергоэффективности и продуманной планировки. Дом площадью 88 м² (с учетом крыльца и патио) возводится всего за 14–21 день и готов к заселению сразу после строительства.


    🔹 Ключевые характеристики:

    • Размеры: 8×8 м (площадь по полу) + крыльцо 8 м² (8×1 м) + патио 24 м² (8×3 м).
    • Общая полезная площадь: 71,1 м² (57,2 м² — первый этаж + 13,9 м² — мансарда).
    • Срок строительства: 14–21 день (готовый домокомплект «под ключ»).
    • Фундамент: винтовые сваи (установка за 1 день).
    • Материалы:
      • Каркас из бруса 50×150 мм. основание сдвоенный брус 50×150 мм
      • Перехлестное утепление (базальтовый плитный утеплитель, общая толщина 150 мм).
      • Энергосберегающие панорамные окна (180° обзора).

    🔹 Планировка:

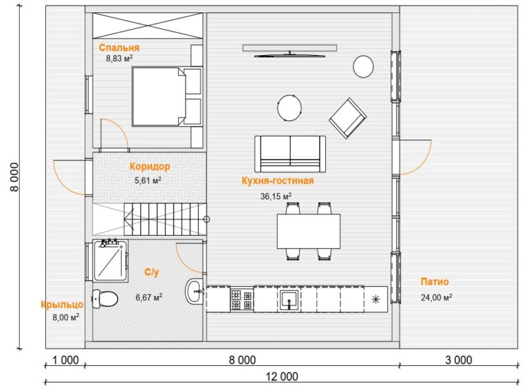
    Первый этаж (57,2 м²):

    Кухня-гостиная (36,15 м²) — просторная зона для отдыха и готовки.
    Спальня (8,83 м²) — уютное место для сна с большим окном.
    Санузел (6,67 м²) — компактный, но функциональный.
    Коридор (5,61 м²) со встроенными шкафами для хранения.
    Крыльцо (8 м²) — удобный вход в дом.

    Мансардный этаж (13,9 м²):

    Спальня (13,9 м²) — уединенное пространство с естественным освещением.

    Дополнительные зоны:

    Патио (24 м²) — идеальное место для летнего отдыха на свежем воздухе.


    🔹 Преимущества A-Frame Classic 8×8:

    Энергоэффективность — тройное утепление снижает затраты на отопление на 40%.
    Быстрое строительство — от фундамента до сдачи за 2–3 недели.
    Экологичные материалы — натуральная древесина и безопасные утеплители.
    Уникальный дизайн — треугольная конструкция с панорамными окнами.
    Гибкая планировка — возможность адаптации под ваши нужды.


    🔹 Варианты комплектации:

    1. «Тёплый контур» (базовая):

    • Фундамент на винтовых сваях.
    • Каркас с утеплением.
    • Кровля и фасадная отделка.
    • Остекление и входная дверь.

    2. «Под ключ» (полная):

    • Все элементы «Тёплого контура».
    • Внутренняя чистовая отделка (евровагонка).
    • Лестница на мансарду.

    (Разводка коммуникаций — электрика, водоснабжение, канализация — обсуждается отдельно.)


    🔹 Как мы работаем?

    1. Консультация — обсуждение ваших пожеланий.
    2. Выезд замерщика (бесплатно, Нижний Новгород и область).
    3. Заключение договора с фиксированной ценой.
    4. Строительство с ежедневным фотоотчетом.
    5. Сдача объекта и гарантия.

    🔹 Почему выбирают нас?

    Собственное производство в Нижнем Новгороде.
    Опыт строительства A-Frame — знаем все нюансы.
    Сертифицированные материалы — только проверенное качество.
    Честные сроки — без задержек.
    Оплата поэтапно — сначала за материалы, остаток по факту сдачи.


    Хотите такой же стильный и теплый дом?
    📞 Звоните: +7 (831) 238-98-67 (Нижний Новгород)
    📩 Оставьте заявку — получите каталог с актуальными ценами и начните строительство уже в этом сезоне!

    P.S. Количество свободных бригад ограничено — успевайте забронировать дату! 🚀

    Что говорят про наши построенные Глэмпинги A-frame

    Получают высшие оценки на платформах бронирования, имеют годовую заполняемость 70% и окупаются за два года.

    Получить каталог с ценами в мессенджер

    Получить каталог с ценами в мессенджер